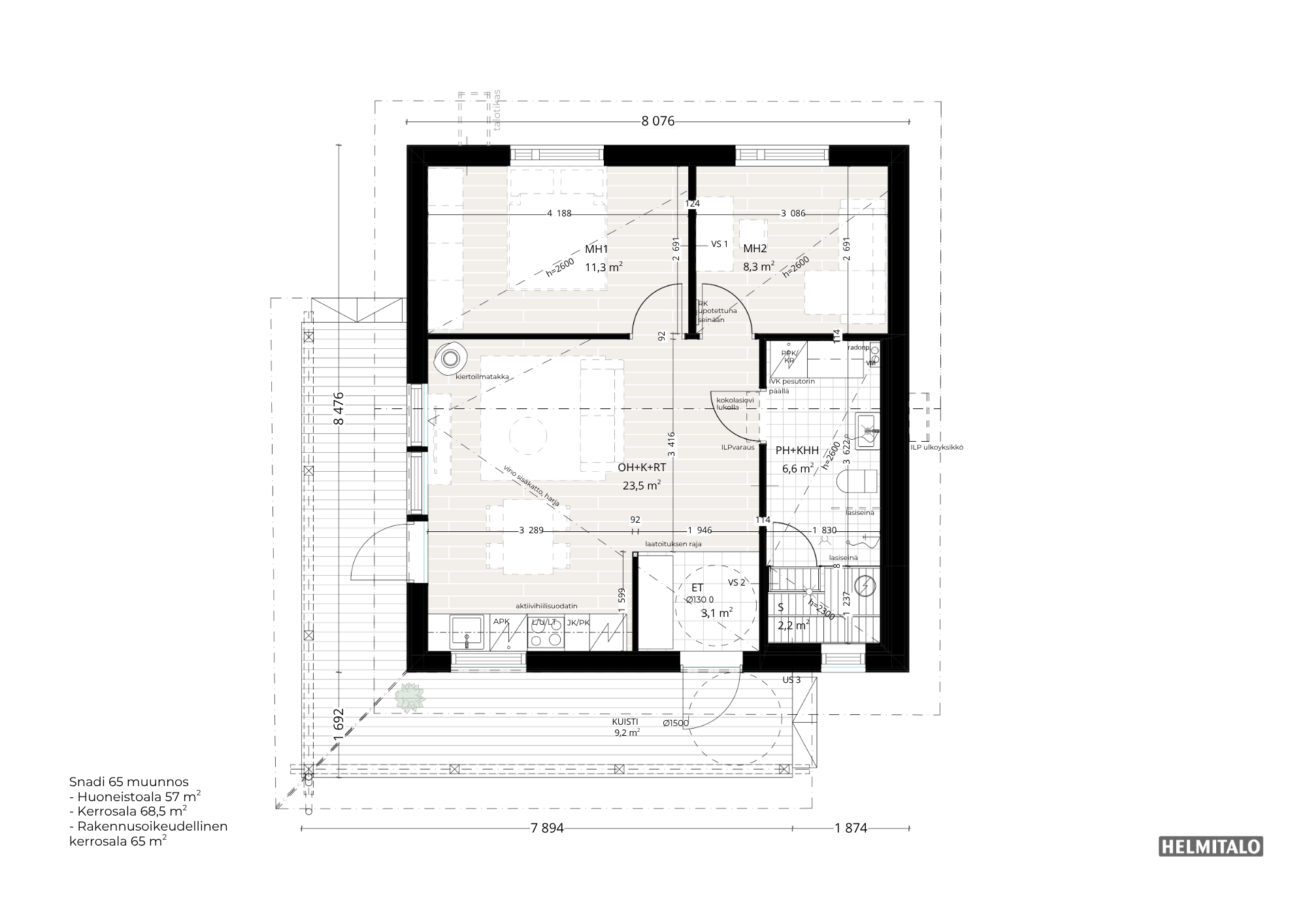
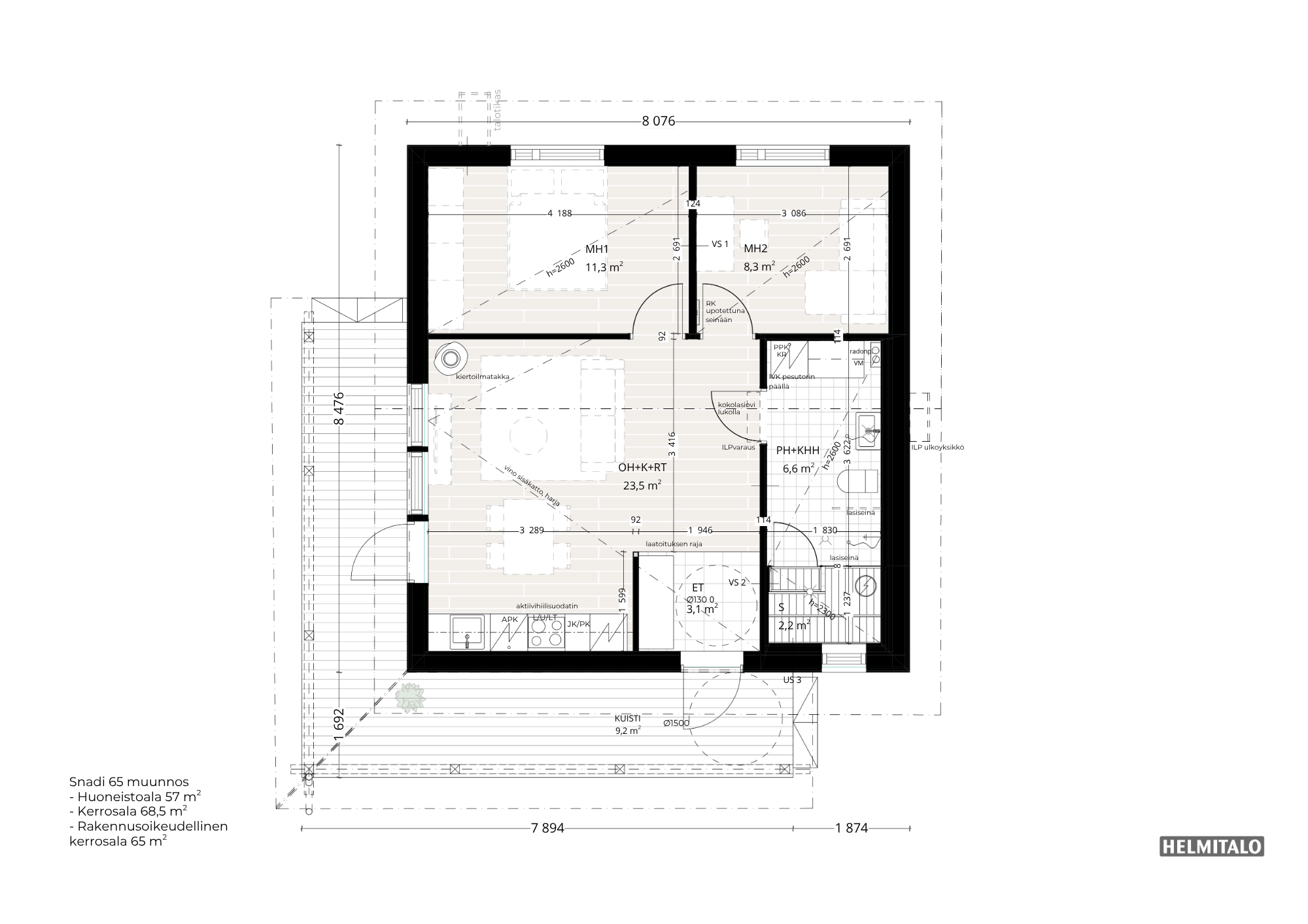
Kuutio 65
2 MH + OH/K + WC/KHH/PH + S + Kuisti
Kuutio 65
2 MH + OH/K + WC/KHH/PH + S + Kuisti
- Sisämitta: 7398 x 7398
- Ulkomitta: 8076 x 8076
- Kerrosala: 65 m2
- Rakennusoikeudellinen kerrosala: 62 m2
- Huoneistoala: 54m2
Kohteen kuvaus
Kuutio 65 on kustannustehokas tilaihme kahdella makuuhuoneella. Tässä kodissa ei ole mitään turhaa vain kaikki tarpeellinen on kompaktissa koossa, omalla paikallaan. Kuution lämmitys on suunniteltu toteutettavaksi ilmalämpöpumpulla ja sähköisellä lattialämmityksellä. Lisälämpöä saadaan tunnelmallisesti kiertoilmatakasta. Haluttaessa tähän kotiin voidaan liittää varasto ja autokatos.
Kysy lisää kohteesta
Ota yhteyttä niin myyjämme on sinuun yhteydessä.
