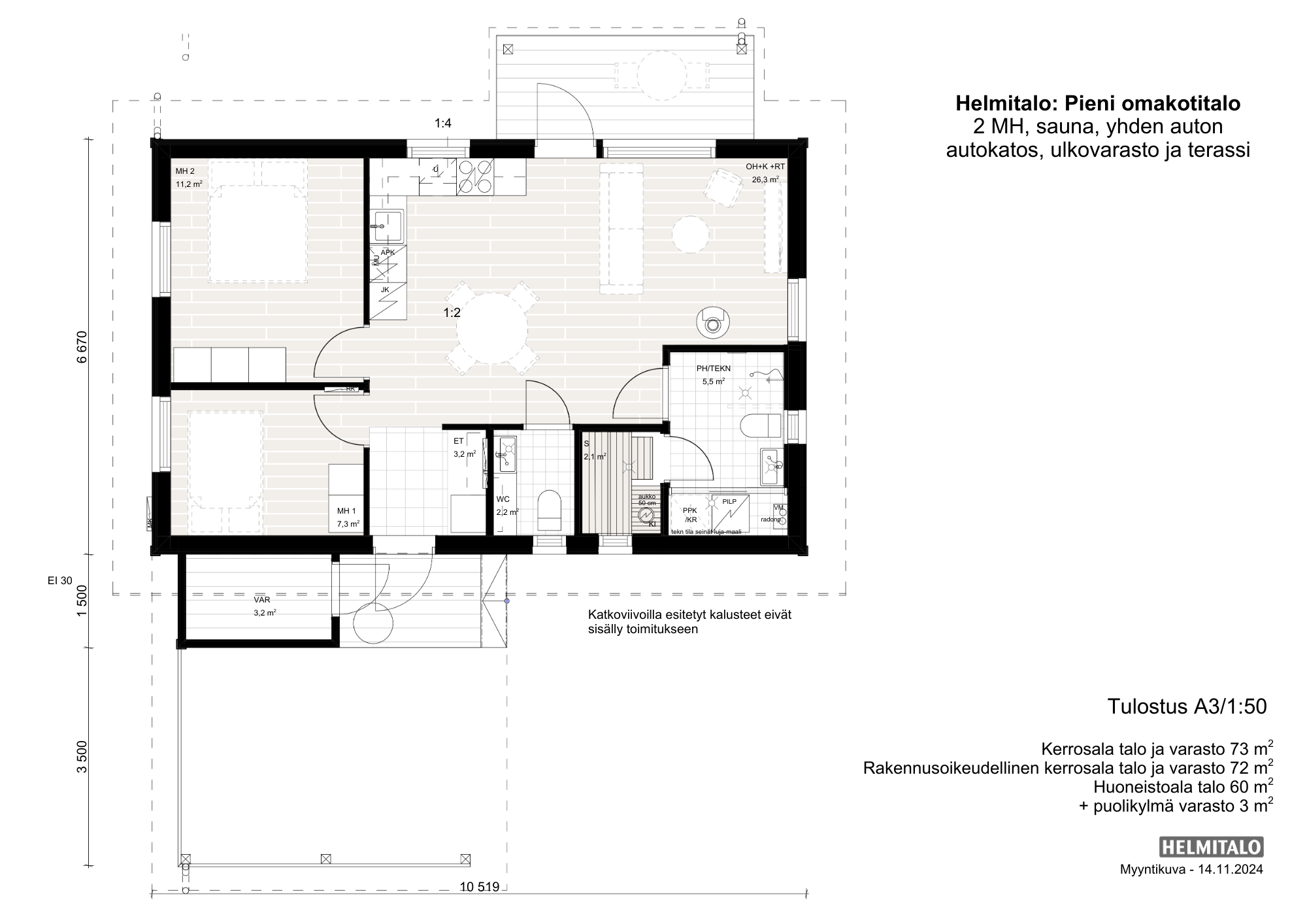
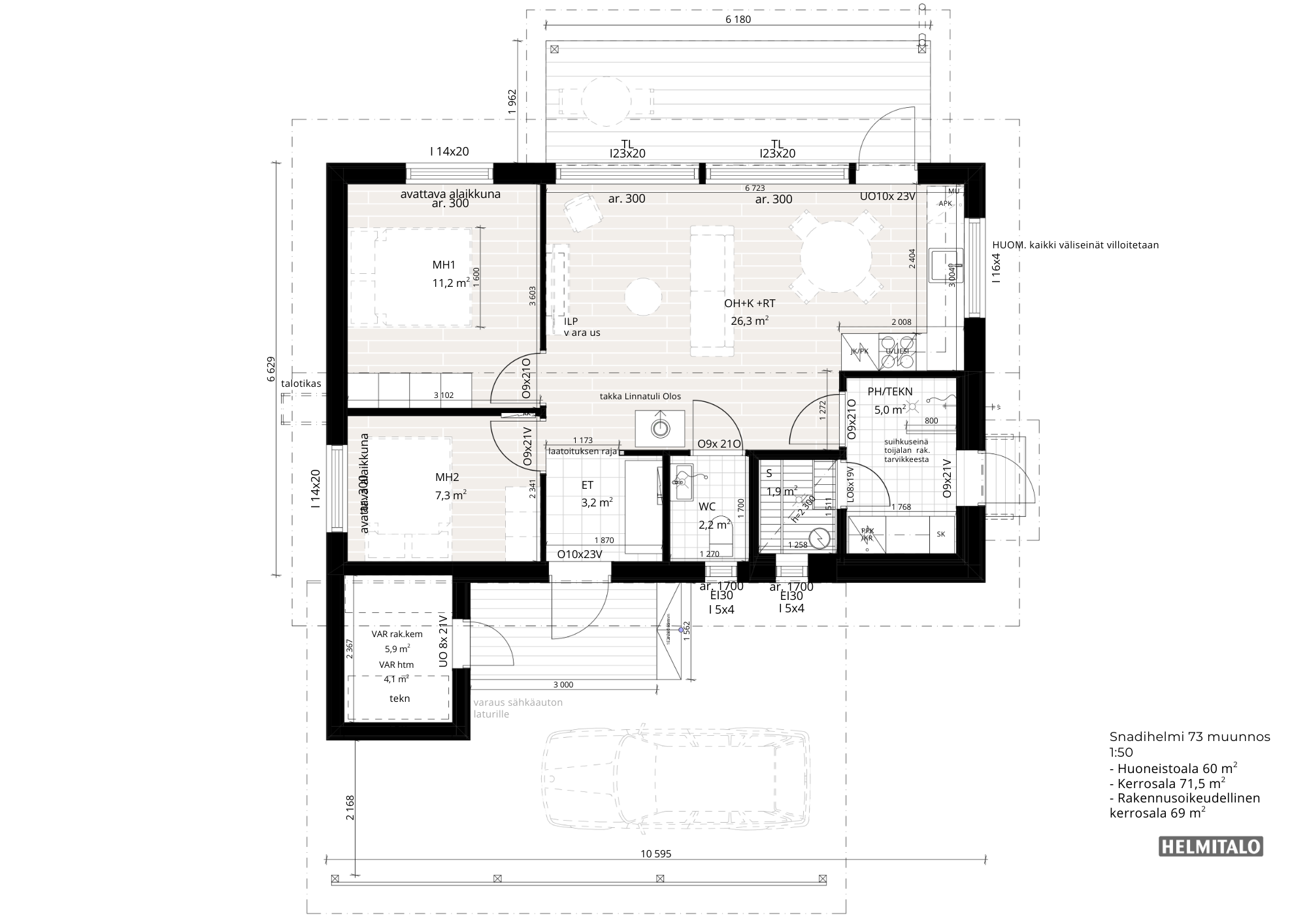
Snadihelmi 73.
Huoneluku 2 MH + OH/K + 1 WC + PH + S
Snadihelmi 73
Huoneluku 2 MH + OH/K + 1 WC + PH + S
- Kerrosala 73m²
- Rakennusoikeudellinen kerrosala 72m²
- Huoneistoala 60m²
- Kerrosluku 1
Kohteen kuvaus
Snadihelmi syntyi vastamaan monenlaisia tarpeita. Tilat ovat kompaktit, joten huollettavaa ja lämmitettävää on vähemmän. Silti talosta löytyy makuuhuone, vierashuone/työhuone, ulkovarasto, ja oma sauna. Tämä talo täyttää kaikki asumisen tarpeet ja mahtuu tontille kuin tontille.
Tässä mallissa voit muokata mm.
- Keittiön värimaailmaa
- Sisustusmateriaaleja
- Ulkopuolen väritystä
Taloon voi liittää terassin, pergolan, autotallin tai autokatos-varaston, yhdelle tai kahdelle autolle.
Julkisivu voi olla moderni, ajaton tai perinteinen. Julkisivupinta on puupaneelia eri leveyksissä, vaaka- tai pystylaudoituksella, tai hirsipaneelilla. Saatavilla on myös rapattu pinta.
Muut tiedot vakiotoimitussisällön mukaan, lataa tästä.
Tekniset tiedot
- Sisämitta 6070 x 9919 mm
- Ulkomitta 6670 mm x 10 519 mm
- Kerrosala 73m²
- Rakennusoikeudellinen kerrosala 72m²
- Huoneistoala 60m²
Vakiolämmönlähde: Poistoilmalämpöpumppu Nibe, vaihdettavissa mm. Maalämpöpumppu, Ilmavesilämpöpumppu. Vesikiertoinen lattialämmitys kaikissa tiloissa.
Tiiviys: kohteiden keskiarvo A-luokka
Kysy lisää kohteesta
Ota yhteyttä niin myyjämme on sinuun yhteydessä.
